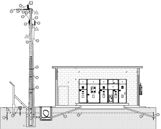
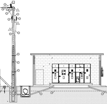
Subestação Aerea e Abrigada (13,8kV a 34,5kV)
Para empreendimentos de maior porte e com amplos espaços disponíveis, as subestações ao tempo representam a solução ideal para garantir o fornecimento de energia em alta e média tensão. Projetadas para resistir às condições ambientais mais desafiadoras, oferecem a flexibilidade e a capacidade necessárias para atender indústrias, grandes condomínios, usinas e complexos agroindustriais.
Nossas Soluções Abrangem:
Estudos de Viabilidade Técnica e Econômica: Análise profunda das demandas de carga e condições da rede para a solução mais eficiente.
Projetos Básicos e Executivos: Elaboração completa da documentação técnica, incluindo diagramas unifilares, layouts, estudos de proteção e dimensionamento de equipamentos.
Engenharia do Proprietário: Atuação como representante técnico para gestão de todas as fases do projeto.
Construção e Montagem Eletromecânica: Implantação completa da subestação, incluindo obras civis, montagem de estruturas e instalação de todos os equipamentos de pátio e casa de comando.
Comissionamento e Start-up: Testes rigorosos para garantir o funcionamento seguro e eficiente antes da energização.
Modernização e Retrofit: Atualização de subestações existentes para maior capacidade, confiabilidade e adequação às novas exigências.




Projetos de Subestações ao Tempo (Área Externa)
Projetos de Subestações Abrigadas de Média Tensão (até 34,5 kV)
Para empreendimentos que demandam alta confiabilidade energética em espaços otimizados, as subestações abrigadas de média tensão são a solução ideal. Projetadas para operar em ambientes internos, essas instalações garantem máxima segurança, proteção contra intempéries e uma integração discreta e harmoniosa com a arquitetura de edifícios comerciais, hospitais, shopping centers, indústrias e data centers.
Vantagens Estratégicas:
Segurança Aumentada: Proteção contra vandalismo, intempéries e acesso não autorizado, reduzindo riscos e interrupções.
Otimização de Espaço: Layout compacto e sob medida, liberando área valiosa para a sua atividade principal.
Maior Confiabilidade e Vida Útil: Equipamentos protegidos contra fatores externos, minimizando desgaste e prolongando a durabilidade.
Redução do Impacto Visual e Ambiental: Integração discreta à construção, contribuindo para uma estética mais limpa e organizada.
Nossos Serviços Incluem:
Análise de Carga e Demanda: Avaliação precisa das necessidades energéticas para o dimensionamento perfeito.
Projeto Elétrico e Eletromecânico Detalhado: Documentação completa conforme normas da concessionária Equatorial, incluindo cubículos de média tensão e sistemas de proteção.
Projetos Complementares: Integração de sistemas de ventilação/climatização, combate a incêndio, aterramento e iluminação de emergência.
Gerenciamento e Execução da Montagem: Coordenação e instalação de todos os componentes com foco na excelência.
Comissionamento e Laudos Técnicos: Testes rigorosos e emissão de documentação para aprovação e energização junto à concessionária.
Entre em Contato!


contato@difamilia.com
© 2025. All rights reserved.
INFORMAÇÃO DE CONTATO
REDES SOCIAIS
LINK UTEIS
Rua Estrada Matões
Seg - Sex. 8h às 17h
+55 98 98141-9043


CNPJ: 42.717.544/0001-19
Razão Social: DI FAMILIA ENGENHARIA ELÉTRICA
@2025 R DE A LIMA
